Villa style « NORMAND » entièrement remise à neuf 5 chambres et 4 SDB – 225m² – à partir de 795.000€ – Vendu
Rénovation et transformation d’une villa de caractère ; elle se composera de 5 chambres et 4 salles d’eaux.
Remplacement de la toiture et des châssis. Construction d’une annexe entièrement vitrée. Isolation par l’extérieure, chaudière à condensation et système double flux. Maison basse énergie.
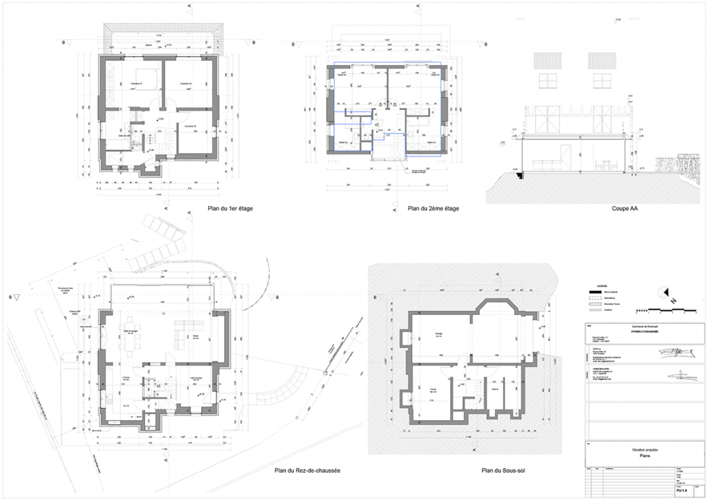
Sous-sol avec double garage en enfilade et espaces de rangements sur une surface de 70m².
Rez-de-chaussée composé d’un vaste hall d’entrée, d’une cage escalier en bois noble, d’un WC,d’un séjour/salle à manger +- 60m2, une cuisine de 14 m2 et d’une terrasse sur pilotis de 50m2
Le premier étage propose 3 chambres, un WC séparé et une salle de douche sur la palier. Une 1er chambre de 18m2 avec sa salle de bain et un double évier, la 2ème chambre de 16m2 et la 3ème de 10m².
Le deuxième étage est composé de deux grandes chambres de 18m² avec leurs salle de bains attenantes. Un WC séparé au palier.
La propriété sera entièrement clôturée et sera agrémentée par un portail automatique et le placement de panneau antibruit le long d’une partie de la voierie.
Vendue sous le régime de TVA
CLIENT
Cosyhomes
Notre Mission
Permis / Construction / Finitions























